咨询热线:
182-0534-0651

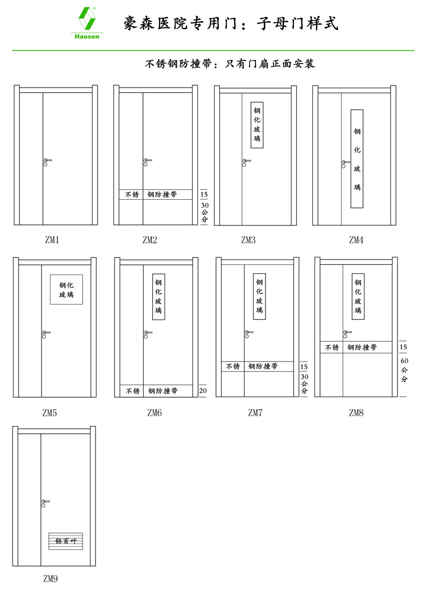
产品特点:豪森是一家专业生产医院卫生间门的生产厂家,豪森厂家经过多年的合理设计与研究,成功的研制出了适用于医院卫生间的百叶门、防水防潮树脂门、医院CPL抗菌板门,豪森医院卫生间门经过多年的实验,该款卫生间专用门使用寿命可达20年以上,是普通木门的4倍,以下着重介绍豪森卫生间门的几大特点: 随着时代的发展,建材家居行业发展的越来越迅速,医院木门行业也要与时俱进更随现代潮流,才能不被消费者和行业之间淘汰。随着大家居的广泛延伸,医院木门行业开始与家居行业其它分支实现交互发展,医院木门品牌与衣柜等品牌纷纷步入对方的领域。
182-0534-0651





























