咨询热线:
182-0534-0651

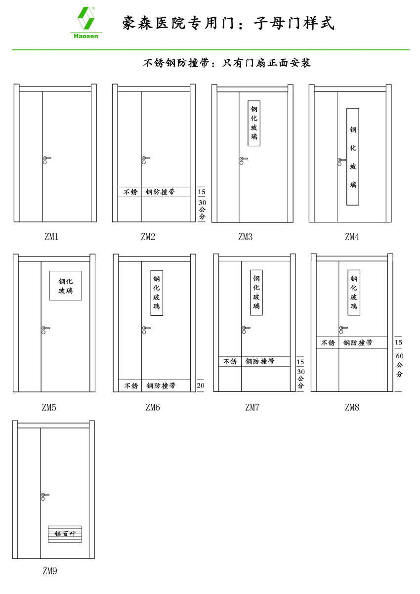
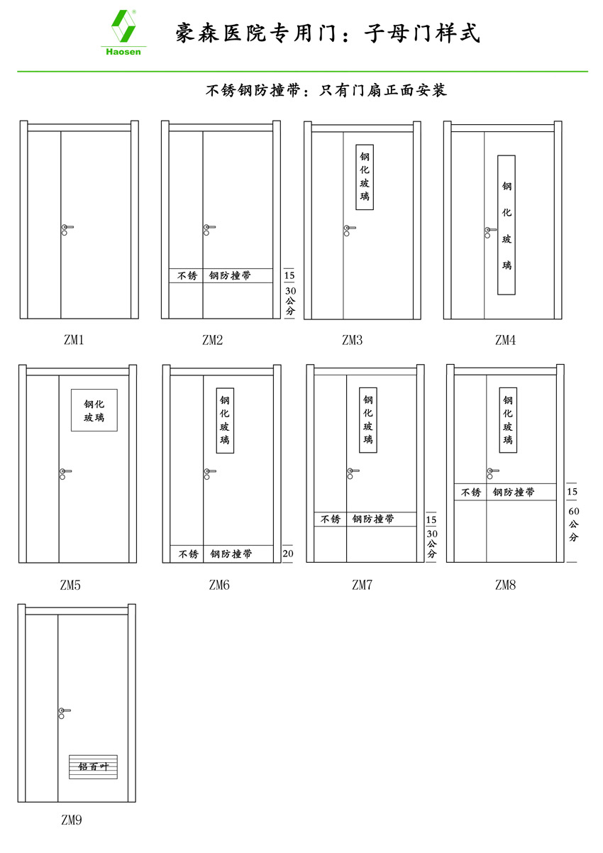
产品特点:豪森是一家专业生产医院卫生间门的生产厂家,豪森厂家经过多年的合理设计与研究,成功的研制出了适用于医院卫生间的百叶门、防水防潮树脂门、医院CPL抗菌板门,豪森医院卫生间门经过多年的实验,该款卫生间专用门使用寿命可达20年以上,是普通木门的4倍,以下着重介绍豪森卫生间门的几大特点: 1 医院专用门专用不锈钢防撞条—高硬度、耐磨防刮 医院专用门不锈钢防撞带分别安装在门扇的底部距地面200mm内、距地面600mm内、距地面1000mm内、为容易被手推车碰撞、刮伤的部位。豪森医院专用门在门扇
182-0534-0651























